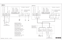
Digital In 1 (+24/+10 V) RS 485 Modbus RS 485 Modbus Adressierung RS 485 Modbus RS 485 Modbus Adressierung n=f x 60 / 2 - N 1 2 4 11 14 3 YEGN 2 2 3 4 5 6 4 3 2 1 4 3 2 1 7 0-10V N L1 GND A(D+) B(D-) ID GND A(D+) B(D-) ID f out GND 0-10V DC E1 D1 4 - GND Klemmkasten terminal box boîte à bornes 4 +10V 10k Potentiomètre (fourniture client) resp. 0-10V signal par ex. de PU/A 10 Art.Nr. 1734/1735 ou EUR EC Art.Nr. 1347 5 1 10k Potentiometer to be provided by customer or rather 0-10V signal from e.g. PU/A 10 Art.Nr. 1734/1735 or EUR EC Art.Nr. 1347 250V~/2A - Störmeldung, siehe MBV - fault signal, see instruction - Alerte de défaut, voir instruction PE N L1 Freigabe unblocking/autorisation 10k Potentiometer bauseits zu stellen bzw. 0-10V Signal von z.B. PU/A 10 Art.Nr. 1734/1735 oder EUR EC Art. Nr. 1347 EC-Motor / moteur EC YEGN 0-10V 3 N N +10V PE 1 L1 L1 14 11 +10V DC/max.10 mA RS 485 Modbus RS 485 Modbus Adressierung RS 485 Modbus RS 485 Modbus Adressierung n=f x 60 / 2 - - Störmeldung, siehe MBV - fault signal, see instruction - Alerte de défaut, voir instruction GND A(D+) B(D-) ID GND A(D+) B(D-) ID f out GND 250V~/2A +24V DC/max.70 mA 0-10V DC E1 EC-Motor / moteur EC 24V 10V Digital In 1 (+24/+10 V) - GND D1 +10V DC/max.10 mA HRFW EC ... 10V 24V +24V DC/max.70 mA HQW EC ... HWW EC ... Freigabe 85463 001 SS-1201 11.06.18 unblocking/autorisation D E F ">
/
Download
Just a friendly reminder. You can view the document right here. But most importantly, our AI has already read it. It can explain complex things in simple terms, answer your questions in any language, and help you quickly navigate even the longest or most compilcated documents.