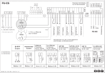
1 x FU = n x Motor bis max. FU-Strom 3~ Motor 24V GND RS 485 Steuerleitungen max. 30m, ab 20m abgeschirmt, siehe Montage- und Betriebsvorschrift ! Extern LTR/K 40 Temperatur Art.Nr. 1323/24 2 x LTR/K 40 Temperatur Art.Nr. 1323/24 (LTA 40 Art.Nr. 1336) (LTA 40 Art.Nr. 1336) LDF 500 Druckaufnehmer Art.Nr. 1322 LDF 500 + LTA 40 Druckaufnehmer + Temperatur (außen) Art.Nr. 1322 + Art.Nr. 1336 LGF 10 2 x AFS 0-10V Luftgeschwindigkeit Absolute-Feuchte Art.Nr. 1325 Art.Nr. 6532 Modus 1.01 Modus 1.01 Modus 2.01, 2.03 Modus 2.05 Modus 4.01 Modus 6.01 E2 GND außen 1 2 3 4 5 6 AFS on on 1 2 3 4 E1 24V 6 5 4 off LGF 3 GND E1 24V T Modus 4.02 +U OUT GND AFS 2 LDF 13 2 1 LDF E2 GND E1 24V br ge ws GND E1 24V br ge ws T T E1 T E1 GND E1 10kW + 0-10V A E1 GND innen br- braun/braun/brun ge- gelb/yellow/jaune ws- weiß/white/blanc GND Potentiometer 1 2 3 4 oder 0-10 V Extern + Data off PE ≤ 10mm² dann 2 x PE ! E2 * + Adressierung 3~ 208-480 V 50/60 Hz Analogeingang 1 oder 24 V Ausgang Digitaleingang 1 PE L1 L2 L3 Analogausgang 0-10V, (max 10mA) * USB Digitaleingang 2 + Analogeingang °C + Analogeingang 2 3~ Motor 0-10V U V W 24V GND A(D+) B(D-) ID2 J1 TB / TP TB / TP D1 D1 A GND 24 V 24 V E1 GND E2 GND T T D2 D2 L1 L2 L3 K2 11 14 12 21 24 22 K1 24V GND A(D+) B(D-) ID1 Parameter Schnittstelle, nur für Servicezwecke max 2A 250VAC 0-10V FU-CS Modus 8.01 S.1 S.2 S.3 85499 146 SS-1362 30.04.19 S.1 D E F J1 3~ Motor + + USB + 24V GND Digital output 2 Analog input °C RS 485 2 x LTR/K 40 Temperature sensor Temperature sensor Art.Nr. 1323/24 Art.Nr. 1323/24 (LTA 40 Art.Nr. 1336) (LTA 40 Art.Nr. 1336) LDF 500 Pressure sensor Art.Nr. 1322 LDF 500 + LTA 40 Pressure sensor + Temperature sensor Art.Nr. 1322 + Art.Nr. 1336 LGF 10 2 x AFS 0-10V Air speed sensor Humidity sensor Art.Nr. 1325 Art.Nr. 6532 Modus 1.01 85499 146 SS-1362 30.04.19 S.2 Modus 1.01 Modus 2.01, 2.03 Modus 2.05 Modus 4.01 Modus 6.01 E2 GND außen 1 2 3 4 5 6 AFS on on off 1 2 3 4 E1 24V 6 5 4 3 GND E1 24V T Modus 4.02 LGF AFS 2 LDF 13 2 +U OUT GND 1 LDF E2 GND E1 24V br ge ws GND E1 24V br ge ws T T E1 T E1 GND E1 10kW + 0-10V A E1 GND innen br- braun/braun/brun ge- gelb/yellow/jaune ws- weiß/white/blanc GND LTR/K 40 1 2 3 4 Potentiometer ext. des. value off ext. des. value + Data Control cables max. 30m, shielded from 20m, see installation and operating instructions ! our 0-10 V Analog input 2 1 x FU = n x motor up to max. FU current 3~ Motor 0-10V PE ≤ 10mm² then 2 x PE ! E2 * 0-10V 3~ 208-480 V 50/60 Hz Analog input 1 our 24 V output Digital output 1 PE L1 L2 L3 Analog output 0-10V, (max 10mA) * Adressing U V W TB / TP TB / TP D1 D1 A GND 24 V 24 V E1 GND E2 GND T T D2 D2 L1 L2 L3 K2 11 14 12 21 24 22 K1 24V GND A(D+) B(D-) ID1 Parameter interface, only for service purposes max 2A 250VAC 24V GND A(D+) B(D-) ID2 FU-CS Modus 8.01 24V GND Adressage 1 x FU = n x moteur jusqua‘à max. courant FU 3~ Moteur + Data RS 485 Câbles de contrôle max. 30m, blindé à partir de 20m, voir notice d‘installation et d‘utilisation ! Potentiometer ext. selon le désir ajustment ext. selon le désir ajustment Sonde de température Sonde de température Art.Nr. 1323/24 Art.Nr. 1323/24 (LTA 40 Art.Nr. 1336) (LTA 40 Art.Nr. 1336) LDF 500 Sonde de pression Art.Nr. 1322 LDF 500 + LTA 40 LGF 10 Sonde de pression + Sonde de vitesse d‘air Sonde de temperature Art.Nr. 1325 Art.Nr. 1322 + Art.Nr. 1336 2 x AFS 0-10V Sonde de humidité Art.Nr. 6532 Modus 1.01 85499 146 SS-1362 30.04.19 S.3 Modus 1.01 Modus 2.01, 2.03 Modus 2.05 Modus 4.01 Modus 6.01 E2 GND außen 1 2 3 4 5 6 AFS on on off 1 2 3 4 E1 24V 6 5 4 3 GND E1 24V T Modus 4.02 LGF AFS 2 LDF 13 2 +U OUT GND 1 LDF E2 GND E1 24V br ge ws GND E1 24V br ge ws T T E1 T E1 GND E1 10kW + 0-10V A E1 GND innen br- braun/braun/brun ge- gelb/yellow/jaune ws- weiß/white/blanc GND 2 x LTR/K 40 LTR/K 40 0-10 V 1 2 3 4 ou off PE ≤ 10mm² puis 2 x PE ! E2 * Entrée numerique 2 3~ 208-480 V 50/60 Hz USB + Entrée analogique °C ou Entrée analogique 1 PE L1 L2 L3 Sortie 24 V * + Sortie analogique 0-10V, (max 10mA) Entrée numérique 1 + Entrée analogique 2 3~ Moteur 0-10V U V W 24V GND A(D+) B(D-) ID2 J1 TB / TP TB / TP D1 D1 A GND 24 V 24 V E1 GND E2 GND T T D2 D2 L1 L2 L3 K2 11 14 12 21 24 22 K1 24V GND A(D+) B(D-) ID1 Interface de paramètre, uniquement à des fins de service max 2A 250VAC 0-10V FU-CS Modus 8.01 ">
/
Descargar
Solo un recordatorio amistoso. Puedes ver el documento aquí mismo. Pero lo más importante es que nuestra IA ya lo ha leído. Puede explicar cosas complejas en términos sencillos, responder a tus preguntas en cualquier idioma y ayudarte a navegar rápidamente incluso por los documentos más largos o complicados.