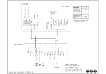
- GND D1 Störmeldung 250V~/2A 2 5 Störmeldung 11 - 14 Ventilator ohne Netzversorgung geöffnet Ventilator mit Netzversorgung, ohne Störung * geschlossen Ventilator mit Netzversorgung, mit Störung geöffnet * unabhängig ob in Betrieb oder auf Freigabe wartend 1 N L1 14 4 3 YEGN 3 11 E1 0-10V DC Digital In 1 5 4 +10V DC/max.10 mA EC-Motor 10V 2 1 24V +24V DC/max.70 mA IVRW EC 5 3 5 Freigabe 85499 063 SS-1300 27.08.18 S.1 5 4 6 PE N L1 4 3 2 1 2 7 0-10V 1 +24V N 2 1 YEGN 4 3 Klemmkasten 10k Potentiometer bauseits zu stellen bzw. 0-10V Signal von z.B. PU/A 10 Art.Nr. 1734/1735 oder EUR EC Art. Nr. 1347 S.1 S.2 S.3 D E F +10V DC/max.10 mA - GND EC motor 10V Fault indication Fan without mains supply N L1 5 11 - 14 open Fan with mains supply, without interference * closed Fan with mains supply, with interference open * regardless of whether in operation or waiting for release 1 2 YEGN 3 4 11 E1 3 14 0-10V DC Digital In 1 Fault indication 250V~/2A D1 5 4 2 1 24V +24V DC/max.70 mA IVRW EC 5 3 5 Release 85499 063 SS-1300 27.08.18 S.2 5 4 6 PE N L1 4 3 2 1 2 7 0-10V 1 +24V N 2 1 YEGN 4 3 Terminal box 10k potentiometer to be provided by the customer or 0-10V signal from e.g. PU/A 24 Item No 1736/1737 oder EUR EC Item No 1347 N L1 5 Signalement de défauts Ventilateur sans alimentation secteur Ventilateur avec alimentation secteur, avec interférence ouvert * peu importe si en fonctionnement ou et attente de libération 3 4 6 Libération 85499 063 SS-1300 27.08.18 S.3 5 4 3 5 PE N L1 +24V 2 7 0-10V 2 1 2 1 YEGN 4 3 Boîte à bornes 1 ouvert fermé 5 N 11 - 14 Ventilateur avec alimentation secteur, sans interférence * 1 2 YEGN 3 4 11 E1 3 14 0-10V DC Digital In 1 Signalement de défauts 250V~/2A D1 5 - GND 4 +10V DC/max.10 mA Moteur EC 10V 2 1 24V +24V DC/max.70 mA IVRW EC 10k potentiomètre à fournir par le client ou un signal 0-10V par example PU/A 24 article no 1736/1737 oder EUR EC article no 1347 ">
/
Download
Just a friendly reminder. You can view the document right here. But most importantly, our AI has already read it. It can explain complex things in simple terms, answer your questions in any language, and help you quickly navigate even the longest or most compilcated documents.